flint

...

PROJET:KRY

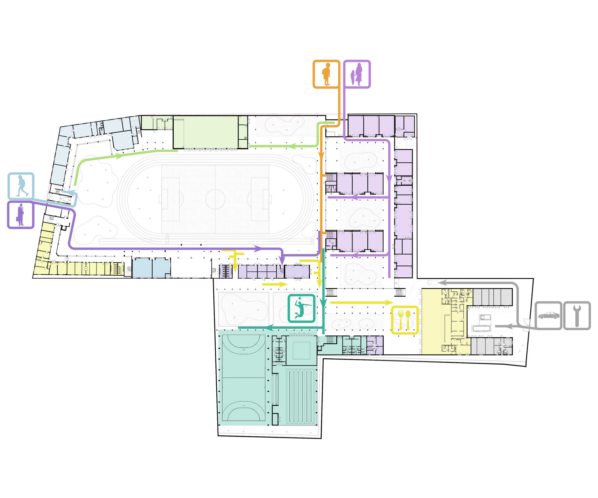
Lycée Albert Camus, Conakry, Guinée, 2018

Le site du Lycée Français Albert Camus de Conakry se trouve au milieu d’un quartier résidentiel fragmenté et il est caractérisé par sa forme irrégulière due à la récente fusion de deux parcelles adjacentes. Le complexe du lycée est très reconnaissable dans l’ensemble du tissu urbain grâce à sa forme compacte et à son aspect extérieur uniforme. L’agrandissement du site, avec l’acquisition de la parcelle adjacente, a déterminé une réflexion globale sur l’établissement en vue de la croissance du nombre d’élèves attendus dans les années à venir. Sur la base de cette nouvelle vision, et de la volonté de donner au Lycée Français des équipements plus qualitatifs, la réflexion sur le projet a mené à la décision de repenser le site dans sa globalité en envisageant ainsi la démolition des bâtiments jugés obsolètes ou inadéquats pour la bonne pratique des activités scolaires. En réponse au souhait de donner un caractère unitaire au site et de réunir les anciens bâtiments conservés avec les nouveaux ; le projet a été développé autour deux grands espaces ouverts reliés par un axe de distribution. Tout le long de ce parcours couvert on accède aux différents corps de bâtiments : la salle évènementielle et le pôle primaire, les classes de l’école élémentaire, la grande cour du secondaire avec l’anneau d’athlétisme et le terrain de mini-foot, le centre de gravité, la cour de l’école élémentaire pour atteindre enfin le pôle sportif et la restauration.

  • En raison des conditions climatiques du site, les principaux facteurs qui ont déterminé la conception architecturale sont l’ensoleillement et les fortes pluies. En réponse à ces contraintes les volumes sont fragmentés et élevés en R+1 afin de créer des cours et des patios qui peuvent profiter de l’ombre portée par les bâtiments. De grandes toitures en pente, réalisées en bac acier, décollées du bâti, créent des combles largement ventilés et apportent de l’ombre aux volumes sous-jacents afin d’éviter la surchauffe des locaux. En continuité avec le mode constructif déjà engagé sur les bâtiments existants conservés, les façades sont rythmées et reliées entre elles avec un système de poteaux–poutres. Les espaces extérieurs ont été placés au centre de la conception architecturale car ils assurent le lien entre les différentes entités du complexe scolaire et garantissent l’intégration des bâtiments existants conservés avec les nouveaux. Le cœur de cet ensemble est fédéré autour du sport.
  • Architecte mandataire

    Flint

  • Equipe flint

    Lucia Martinez

  • Maîtrise d'ouvrage

    Bizot

  • Programme

    Lycée Français

  • Statut

    Concours

  • Lieu

    Conakry, Guinée

  • Perspective

    Lunas - Léo Dehaye