flint

...

PROJET:GRO

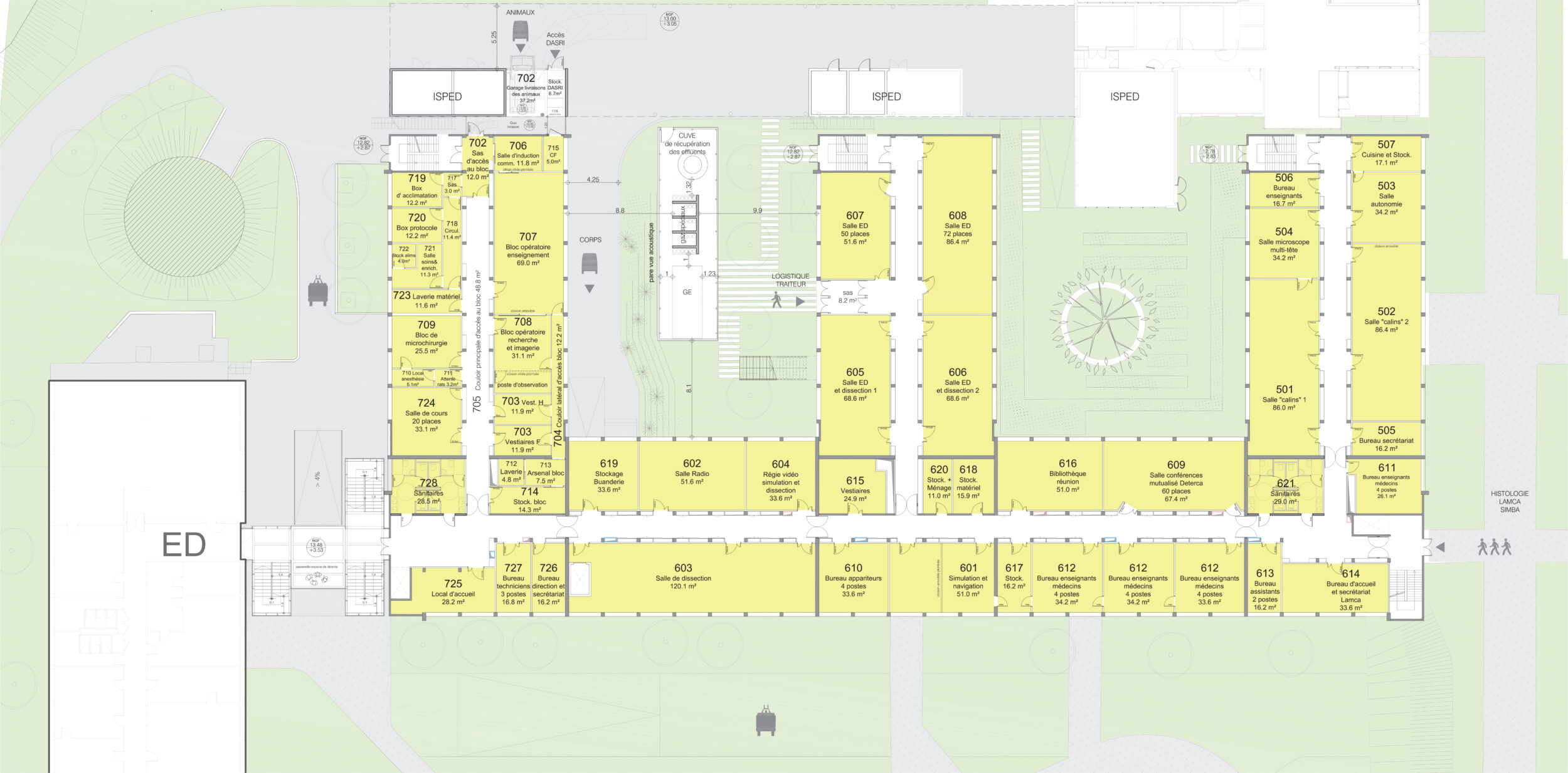
Opération Campus de Bordeaux - Secteur Biologie Santé, Pessac, 2017

  • Entreprise Mandataire

    LEON GROSSE

  • Maîtrise d'œuvre

    AS.ARCHITECTURE STUDIO

  • FLINT Architectes

  • Maîtrise d'ouvrage

    SRIA - Société de Réalisation Immobilière et d'Aménagement de l'Université de Bordeaux

  • Lieu

    Pessac